Квартири в Житомирі
Квартира в новобудові ЖК 777 11500 гр/м2 Житомир в Житомирі
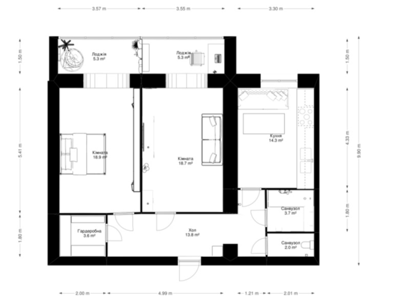
Продам двокімнатну квартиру в якісному новому будинку. Загальний метраж 79.80 м2, житлова 53. Кімнати просторі з виходом на лоджію з панорамними вікнами. Практична функціональна кухня. Для зручності передбачена гардеробна. Санвузол роздільний. Автономне опалення (двоконтурний газовий котел). Розведена електропроводка по квартирі. Встановлено вхідні двері. Наявні лічильники: газ, вода, електрика. Поштукатурені стіни гіповою штукатуркою.
Квартира не углова, з хорошою тепло- та звуко- ізоляцією.
Квартира знаходиться в якісній, елітній новобудові ЖК 777
Стіни будинку з керамічної цегли утеплені мінеральною ватою та облицьовані лицьовою цеглою. Зовнішні стіни до 1 м, з коридору 0.64 м між кухньою та кімнатою також 0.64 м.
На поверсі є кладова.
Попереду будинку дитячий та спортивний майданчик, територія закрита з відео наглядом
Є достатня кількість паркомість.
Гарне транспортне сполучення. Будинок знаходиться у 2 лінії від дороги, що забезпечує комфортне та тихе проживання у квартирі
Дії з оголошенням #1663189
Поділіться з друзями і знайомими
Поділіться оголошенням Квартира в новобудові ЖК 777 11500 гр/м2 Житомир з друзями, знайомими, потенційними клієнтами, використовуйте для цього соціальні мережі, месенджери. Це додасть оголошенню популярності і ефект багаторазово підвищиться.
Збережіть або повідомте про порушення
Консультаційний відділ ЖК 777 Консультаційний відділ ЖК 777
- На сайті з: 13.08.2019
- Активність: 13.08.2019
Поради з безпеки
- Познайомтеся з продавцем в публічному місці
- Перевірте товар перед покупкою
- Сплачуйте лише після того як переконаєтеся, що товар відповідає опису і вашим вимогам
- Бажано провести операцію при свідках
QR-код сторінки
Поділіться QR-кодом в соціальних мережах, чатах, месенджерах щоб ваші знайомі, потенційні клієнти відкрили ваше оголошення на своїх смартфонах.
Казахстан
Україна
Узбекистан
Молдова